- 現在位置:
- HOME> 趣味の隠れ家・ログハウス プラン例[ 1 ]
-
![(有)茜プランニング 趣味の隠れ家・ログハウス プラン例[ 1 ]](img/h1_kakurega.gif)
-
この企画は終了いたしました お買い上げありがとうございました また、新企画を計画いたします お待ち下さい 釣り・車・バイク・ボートなど、色んな趣味と一緒に暮らす 「 趣味の隠れ家ログハウス 」 今回は、「趣味の隠れ家を長野県小諸市に」という企画です 土地をお持ちで無い方には朗報です! 趣味の隠れ家ログハウス建築用地として、弊社の所有地を特別価格でお譲りしますのでお使い下さい なお、この土地ですが一筆しかご用意できませんので、先着1名様のみの限定となります もしもこの土地に建てるならという想定で、下のようなプランをご提案いたしますのでご検討下さい
ただし・・・・
※弊社のログハウスはフリープランにご対応するというのが大原則です
もっとすばらしい、ご自身のお好みプランがございましたら設計させて頂きますので、ご相談ください
ページ更新日 : 2017年1月12日 「お問い合わせ大歓迎です」
-
土地所在地 :長野県小諸市大久保 千曲川の南側に位置します 北東には浅間山・南には八ヶ岳を臨むロケーションの良い丘の上 のどかな田園風景に囲まれた静かな所 近くには温泉施設「あぐりの湯こもろ」があります 土地面積 : 423.00m2 [ 約128坪 宅地] 平坦地 土地権利 : 所有権 アクセス : 上信越自動車道 小諸IC 10分 北陸新幹線 佐久平駅 車で20分 しなの鉄道 小諸駅 車で10分
-
弊社の設計ライブラリー内で最もシンプルなロフト付プランです 本来はセルフビルド用に設計した物ですが、この土地の候補プランとして採用しました コンパクトな隠れ家としてお使い下さい また耐久性の高さはもちろん・快適な住空間も保証いたします 下はイメージCG: フィンランド工場のスタッフが作成したコンピュータグラフィック 外壁や窓・ドアの塗装色を検討する時のご参考になさってください 塗装は、オーナーになられる方のお好みで彩色いたします
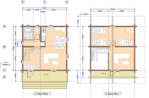
下は平面図:
近所に公衆温泉がありますので、風呂の使用頻度を考慮してコンパクトなお風呂
ロフトには展望デッキも設け、南側の位置し八ヶ岳連峰を一望できます
弊社土地にこの建物を配置した予想図: 南側道路からのアクセスです 建物を西側寄りに配置して、東側に余土地を多く設けました、畑・お庭などにお使いください
■ 共通仕様 ●インフラ関連(引き込み・設置は建物完成価格に含まれています) ・水道 : 小諸市営水道 ・下水 : 合併浄化槽による水洗化 ・電気 : 中部電力 ●最高級のログハウス部材 ・ログ壁 : ラミネート135mm幅・北欧ラップランドパイン ・外部建具: 木製 3層ガラス[ アルゴンガス入りUVカット 高断熱 ] ・内装材 : 北欧パイン ●住宅設備 ・システムキッチン、ユニットバス(仕様は弊社にお任せ頂きます) ・経済的なオール電化 IHレンジやエコ給湯(ガス・石油などに仕様変更は可能) ●オプション(追加仕様) 長野県のような寒冷地でも快適な冬を過ごして下さい ・土壌蓄熱式暖房システム 価格+:\1,296,000(税含) 基礎下土壌に熱を蓄積し、家の中が快適な温度で保たれます どこのお部屋も同じ気温となり、お年寄りには優しい住環境となります ・アプローチ融雪システム 価格+:\2,808,000(税含) 長野県の冬、偶に雪が降ります。お年寄りには除雪はたいへんな作業です 玄関から前面道路までの間に融雪装置を敷設いたします 降雪を自動感知し、融雪を開始します ・薪ストーブ ログハウスには定番の薪ストーブです 燃える炎を見ている時が最高の至福の時 機種や設置位置により異なりますので、別途お見積いたします
-
-
[ ログハウスをDIYで実現 ] 簡単構造のログハウスキット
-
趣味の隠れ家・ログハウス
-
キャンピングドーム Camping-Dome キット販売
-
お見積もりやログハウスについてのお問い合わせなど、お気軽にお問い合わせください
-
ログハウスのカタログ
-
新しい別荘オーナー探しています
-
弊社がプロデュースする北欧住宅の新システムです







